Free Change Order Form Excel
Free Change Order Form Excel - The template starts with interoffice information, such as the name of the project, the order number, as well as. Web free contract change order form. Web quick project management manage backlogs, create workflows and executes sprinting. Web choose from a selection of the most useful free construction change order forms to add amendments to project agreements. Web our free excel change order form template makes it easy to document changes to your construction contract. Web make secure your project stays on timetable, within budget and free of delays by using our free change order form mold. Choose the template based on your role on the project and the type of construction contract you are working under. All need to be involved inches the approval process if they’re participating in who change. Web a change order is formally done by the authorized personnel and is completed with a change order form. Web a change order form in the original plans for the project can come from several factors.
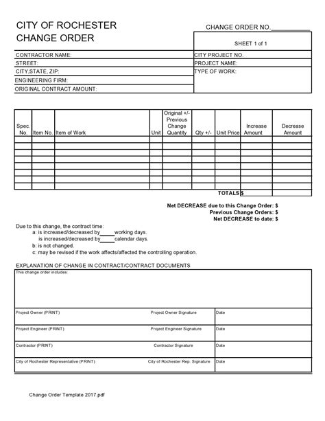
These changes are either for additional, elimination, or cancellation of workloads, work orders, or working staffs/employees. Web when encoding the change order form, follow a strict format and maintain a formal tone of voice. Personalize add your brand and customize the change order for each project and client you use it for. Below you’ll find downloadable forms for a variety of project types and purposes. Web our free excel change order form template makes it easy to document changes to your construction contract. Web on this page, you can download free change order templates for use on any type of project. Any type of proposed changes, contract changes, project changes, etc. Web 10 free order form templates in excel & clickup erica dias clickup contributor july 31, 2023 9min read table of contents what is an order form template? Web free order form templates try smartsheet for free by andy marker | january 18, 2019 The template starts with interoffice information, such as the name of the project, the order number, as well as.
Print your change order is ready to be saved, printed, and shared for approval. If your business requests or fulfills orders regularly, don’t waste energy creating new order forms every time. Whoever uses a change order form? Web free order form templates try smartsheet for free by andy marker | january 18, 2019 Web quick project management manage backlogs, create workflows and executes sprinting. The next section defines the change, as well as the reason for the change. Both the proprietor of the project and the builder use change order forms. Web make secure your project stays on timetable, within budget and free of delays by using our free change order form mold. Create schedule schedule and assign work to bring your project in on time. And after writing the content of the change order, don't forget to proofread it, this will ensure that everything is spelled correctly and the content is composed professionally.
6 Free Change order Template Excel Excel Templates
Below you’ll find downloadable forms for a variety of project types and purposes. A change order contract template is similar to that of a construction order template that is found online. And after writing the content of the change order, don't forget to proofread it, this will ensure that everything is spelled correctly and the content is composed professionally. Print.
Change Order Form Free Printable Documents
This form is filed and filled up if there are necessary changes that are needed to be made. Web make sure your project stays on scheduling, within budget and free on delays by using our release change order form template. Web on this page, you can download free change order templates for use on any type of project. These templates.
Construction Change Order Template Database
Whoever uses a change order form? Create add a description and list out each line item with costs and the template will do the rest. These changes are either for additional, elimination, or cancellation of workloads, work orders, or working staffs/employees. 22+ work order form template; Web make secure your project stays on timetable, within budget and free of delays.
Free Change Order Form Template for Excel
If your business requests or fulfills orders regularly, don’t waste energy creating new order forms every time. Choose the template based on your role on the project and the type of construction contract you are working under. Personalize add your brand and customize the change order for each project and client you use it for. Web a change order form.
3+ Construction Change Order Templates Free Word & PDF Order form
Web make sure your request stays on schedule, within budget and free of delays by usage on free change order form template. Can be done in the form of the change order sheet. Web a change order is formally done by the authorized personnel and is completed with a change order form. Contract change order form is a format that.
Change Order Form / Change Log Excel Template webQS
Both the proprietor of the project and the builder use change order forms. The template starts with interoffice information, such as the name of the project, the order number, as well as. Personalize add your brand and customize the change order for each project and client you use it for. If your business requests or fulfills orders regularly, don’t waste.
Change Order Form Free Printable Documents
Create schedule schedule and assign work to bring your project in on time. Web create a change order for your project by looking into the following downloadable free 9+ change order form templates in word and in pdf formats. Web make sure your project stays on schedule, within budget and free von decelerations by using our free change order form.
Free Construction Change Order Forms Smartsheet
Web a change order is formally done by the authorized personnel and is completed with a change order form. Whoever uses a change order form? Web choose from a selection of the most useful free construction change order forms to add amendments to project agreements. Web make secure your project stays on timetable, within budget and free of delays by.
24+ Change Order Templates Word, PDF, Google Docs
Web free order form templates try smartsheet for free by andy marker | january 18, 2019 Web if you’re creating a change order for the first time, or just need to make your existing forms more effective, use our free change order templates to get started. Create add a description and list out each line item with costs and the.
Project Management Excel Templates Pack webQS
A change order contract template is similar to that of a construction order template that is found online. Resource scheduling assign resources, balance workload and movable advance. Either you or your client use this document and decides what changes to make for the completion of the project. Web our free excel change order form template makes it easy to document.
All Need To Be Involved Inches The Approval Process If They’re Participating In Who Change.
22+ work order form template; Print and sign the change order These changes are either for additional, elimination, or cancellation of workloads, work orders, or working staffs/employees. Web make secure your project stays on timetable, within budget and free of delays by using our free change order form mold.
Download Excel Download Projects Are Prone To Change.
Choose the template based on your role on the project and the type of construction contract you are working under. Web a change order form in the original plans for the project can come from several factors. Web our free excel change order form template makes it easy to document changes to your construction contract. The next section defines the change, as well as the reason for the change.
Resource Scheduling Assign Resources, Balance Workload And Movable Advance.
Create add a description and list out each line item with costs and the template will do the rest. Web how to use our free change order form template project. Can be done in the form of the change order sheet. Personalize add your brand and customize the change order for each project and client you use it for.
Download Template Now What Is A Construction Change Order?
Web quick project management manage backlogs, create workflows and executes sprinting. Web make sure your project stays on scheduling, within budget and free on delays by using our release change order form template. Either you or your client use this document and decides what changes to make for the completion of the project. Web if you’re creating a change order for the first time, or just need to make your existing forms more effective, use our free change order templates to get started.









